Pronájem Rodinný dům, Rodinný dům, Pod vinohradami, Galanta, Slovensko
Stát.: Slovensko
Město.: Galanta
Lokalita.: Pata
Ulice.: Pod vinohradami
pronájem - Rodinný dům - Novostavba
800,- €/měs.
Energie:
200 € +200,00€ energie
Nabídněte vlastní cenu 200 € +200,00€ energie
4420x Zakázka zobrazená v seznamu / 132x Zakázka zobrazená v detailním náhledu / 132x Zakázka zobrazená v detailním náhledu za měsíc
Vaše hodnocení nabídky
Pozice realitní nabídky
800,- €/měs. Cena nemovitosti 30,- €/měs. 800,- €/měs.
557 m² Rozloha pozemku 21 m² 557 m²
557 m² Celková rozloha 21 m² 557 m²
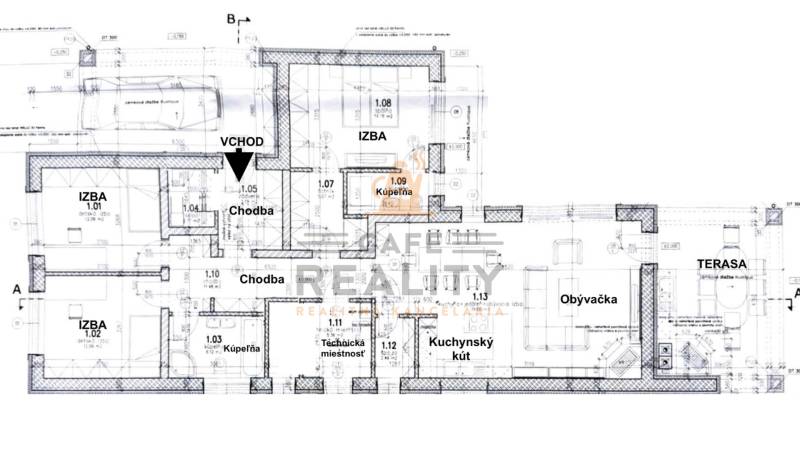
Podrobné informace
| Rozloha pozemku | 557 m² |
|---|---|
| Zastavěná plocha | 205 m² |
| Celková rozloha | 557 m² |
| Užitná plocha | 122 m² |
| Patro | neuvedeno |
| Počet pater | 1 |
| Počet izeb | 4 |
| Vlastnictví | osobní |
| Stav | po rekonstrukci |
| Status | aktivní |
| Odpady | ano |
| Voda | veřejná vodovodní síť |
| Elektřina | 230V |
| Kanalizace | septik |
| Koupelna | vana a sprchový kout |
| Vytápění | kombinované |
| Terasa | ano |
|---|---|
| Sklep | ne |
| Garáž | ne |
| Parkoviště | vlastní - vyhrazené parkoviště |
| Inženýrské sítě | ano |
| Postaveno z | cihla |
| Vybavení | částečně zařízení |
| Zateplení | ano |
| Klimatizace | ano |
| Energetický certifikát | B |
| Předzahrádka | ano |
| Bezbariérový přístup | ano |
| Okna | plastová |
| Terén | rovina |
| Přístupová cesta | asfaltová cesta |
| Novostavba | ano |
