Prodej Byt 5+1 a víc, Byt 5+1 a víc, Jánošíkovská, Senec, Slovensko
Stát.: Slovensko
Město.: Senec
Lokalita.: Dunajská Lužná
Ulice.: Jánošíkovská
4326x Zakázka zobrazená v seznamu / 229x Zakázka zobrazená v detailním náhledu / 229x Zakázka zobrazená v detailním náhledu za měsíc
Vaše hodnocení nabídky
Kontaktujte
REB - REAL PARTNERS, s. r. o. pobočka Luxusné reality, Bratislava
Červeňova 28, Bratislava 81103
Podrobné informace
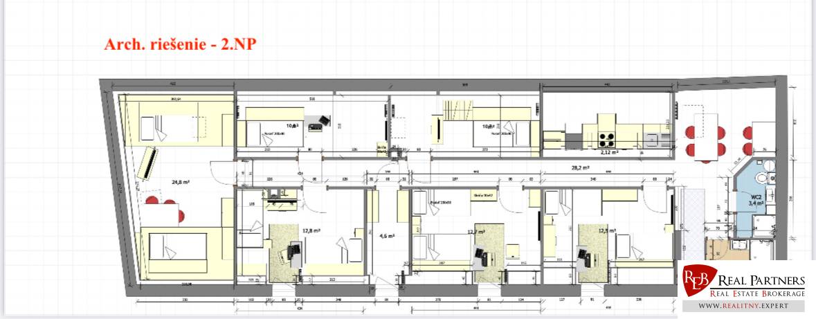
| Užitná plocha | 120 m² |
|---|---|
| Patro | 2/ |
| Počet pater | 2 |
| Počet izeb | 6 |
| Stav | po rekonstrukci |
| Status | aktivní |
| Internet | optika |
| Koupelna | ano |
| Vytápění | ano |
| Balkon | ne |
|---|---|
| Lodžie | ne |
| Terasa | ne |
| Postaveno z | cihla |
| Vybavení | zařízení |
| Zateplení | ano |
| Kabelová televize | ano |
| Energetický certifikát | ano |
| Předzahrádka | ano |
