Prodej Byt 3+1, Byt 3+1, Dúhová, Senec, Slovensko
24766x Zakázka zobrazená v seznamu / 189x Zakázka zobrazená v detailním náhledu / 189x Zakázka zobrazená v detailním náhledu za měsíc
PRODEJ ZTUŠTĚN! VYUŽIJTE AKTUÁLNÍ AKCI A ZÍSKEJTE PARKOVACÍ STÁTÍ V CENĚ BYTU! PLATÍ PRO PRVNÍ TŘI ZAREZERVOVANÉ BYTY.
NAVÍC bude mít tento byt v základní ceně: VLASTNÍ TEPELNÉ ČERPADLO (což znanemná nízké měsíční náklady pro budoucího vlastníka), KLIMATIZACI, EXTERIÉROVÉ HLINÍKOVÉ ŽALOUZE NA VŠECH OKNECH.
Celou nabídku bytů naleznete na www.byvejteraji.cz
Videoobhlídku totožného bytu z 1. etapy, který se nacházel v přízemí si umíte prohlédnout zde: https://my.matterport.com/show/?m=UDwxQ1TxfTZ
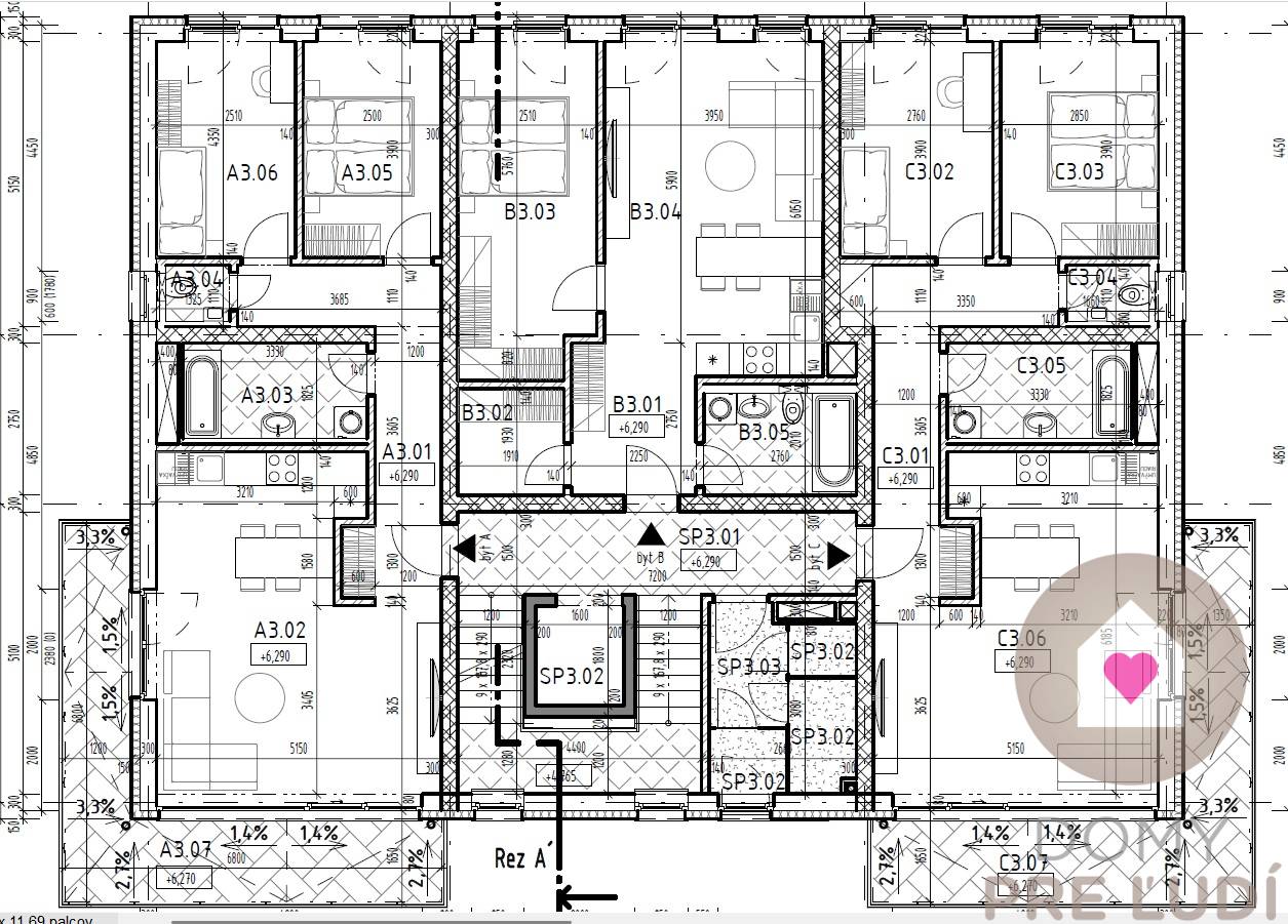
RK Domy pro lidi nabízí exkluzivně k prodeji 3 pokojový byt (A2) v obytném domě, který je aktuálně ve výstavbě v lokalitě Malý ráj, Slovenský Grob, na Duhové ulici.
Byt (A2) se nachází v 1. patře bytového domu (2NP). Celková výměra bytu je 86,81 m2, z čehož 67,92 m2 je samotný byt, 1,34 m2 sklepní kobka a 17,55 m2 prostorný balkon.
Byt dispozičně sestává ze vstupní chodby (11,29 m2), koupelny (6,08 m2), samostatného WC (1,57 m2), obývacího pokoje propojeného s kuchyní (28,68 m2) odkud je východ na balkon a 2 pokojů (každá 10,20 m2). K bytu náleží sklepní kobka o výměře 1,34 m2, která se nachází u bytu. Orientace bytu je na V a SZ s výhledem na Karpaty.
Byt se prodává ve stádiu „holobyt“, s bezpečnostními protipožárními vchodovými dveřmi, vymalovaný na bílo, s osazenými zásuvkami a vypínači, na podlahách ukončené potěrem připraveným k položení nášlapných vrstev. Topení v bytě bude podlahové teplovodní s vlastním tepelným čerpadlem, které bude umístěno v koupelně. V základní ceně jsou také exteriérové hliníkové žaluzie na všech oknech, klimatizační jednotka a kabeláž na optiku a TV.
Nabízíme také možnost dokončit byt do stadia „standard“ dle individuálních požadavků klienta. Cena dohodou. Fotky použité v inzerátu jsou také z 1. etapy.
VŠEOBECNÝ POPIS BYTOVÉHO DOMU:
Bytový dům nabízí celkově bydlení v 9ti bytech na 3 podlažích. K bytům v přízemí budou příslušet vlastní zahrádky, 3 pokojové byty v patrech mají prostorné 17,55 m2 balkony, 2 pokojové byty jsou bez balkonů. Ke každému bytu přísluší sklepní kobka.
POUŽITÉ MATERIÁLY:
• obvodová stěna – 30 cm cihla
• mezibytové příčky – 30 cm akustická cihla
• vnitřní nenosné příčky-13 cm
• střecha – betonová deska + Fatrafol fólie se štěrkovým lůžkem
• zateplení – 18 cm minerální vlna
• fasádní barva – podle vizualizace
• okna plastová, 6 komorová 3skla
• výtah pro 6 osob
• společné prostory budou vydlážděny keramickou dlažbou
• vstupní brána do bytového domu - hliníková
Výstavba bytového domu začala ve 4.Q/24, dokončení je naplánováno ve 4.Q/25, kolaudace a předání bytů v 1.Q/26.
Rezervační poplatek je 10.000€, zbytek se doplácí po kolaudaci bytového domu a podpisu KZ.
1 parkovací místo před bytovým domem o výměře 12 m2 je za příplatek 8.000€.
Bytový dům se nachází v dynamicky se rozvíjející obci Slovenský Grob -Šúr (Malý ráj), která je proslavená svými husími a kachními hody, které každoročně do obce přilákají tisíce návštěvníků.
V lokalitě se nachází obecní škola a školka. Naleznete zde několik dětských hřišť, jezero s oddechovou zónou, fitpark, kavárnu, cukrárnu, dentální hygienu, výdejní místo Packety, veterinární ambulanci a kadeřnictví. Zastávka autobusu je 50 metrů od bytového domu. Nejbližší potraviny (Tesco) se nacházejí 1 km od bytového domu v lokalitě Chorvatský Grob - místní část Černá Voda, kde se také nachází i OC Monar s více provozy, jako lékárna, drogerie, květinářství, fitness centrum, pizzerie a mnoho jiného. Do Chor. Grobu se umíte dostat i kolem po nové cyklolávce. Nedaleký přivaděč na dálnici při OC Klokan tuto lokalitu ještě více zatraktivnil a urychlil spojení s hlavním městem. V běžném provozu cesta do centra hlavního města trvá cca 15 minut.
Tato inzerce není veřejnou nabídkou k uzavření smlouvy. Vlastník si vyhrazuje právo volby o tom, komu a za jakých podmínek převede své vlastnické právo.
Text a všechny fotografie jsou autorským dílem realitní kanceláře Domy pro lidi a jejich kopírování bez předchozího souhlasu nejsou povoleny.
V případě dodatečných otázek mě neváhejte kontaktovat mailem, případně volejte na . Děkuji
Vaše hodnocení nabídky
Pozice realitní nabídky
Podrobné informace
| Celková rozloha | 86.81 m² |
|---|---|
| Užitná plocha | 86.81 m² |
| Patro | 3/ |
| Počet pater | 3 |
| Počet izeb | 3 |
| Vlastnictví | firemní |
| Stav | holoprostor |
| Status | aktivní |
| Plyn | ne |
| Internet | optika |
| Koupelna | ano |
| Vytápění | ano |
|---|---|
| Sklep | ano |
| Postaveno z | cihla |
| Vybavení | bez zařízení |
| Zateplení | ano |
| Kabelová televize | ano |
| Energetický certifikát | A |
| Bezbariérový přístup | ano |
| Okna | plastová |
| Orientace | jihovýchodní |
| Novostavba | ano |
Kontaktní formulář
Vývoj ceny
Mohlo by vás také zajímat
Prodej Byt 3+1
80.36 m2
Senec
208.000,- €
Prodej Byt 3+1
74.98 m2
Senec
229.900,- €
Prodej Byt 3+1
95 m2
Senec
249.000,- €
Prodej Byt 3+1
80 m2
Senec
215.000,- €
Prodej Byt 3+1
0 m2
Senec
229.900,- €
Prodej Byt 3+1
51.52 m2
Senec
192.871,- €
Prodej Byt 3+1
72.28 m2
Senec
232.900,- €
Prodej Byt 3+1
76 m2
Senec
255.000,- €
Prodej Byt 3+1
61.52 m2
Senec
165.000,- €
Prodej Byt 3+1
77 m2
Senec
249.900,- €
Prodej Byt 3+1
80 m2
Senec
240.000,- €
Prodej Byt 3+1
88.35 m2
Senec
229.798,- €
Prodej Byt 3+1
85 m2
Senec
229.000,- €
Prodej Byt 3+1
61 m2
Senec
216.200,- €
Prodej Byt 3+1
71 m2
Senec
204.000,- €
Prodej Byt 3+1
83.5 m2
Senec
195.000,- €
Prodej Byt 3+1
65 m2
Senec
180.000,- €
Prodej Byt 3+1
84 m2
Senec
259.000,- €
