BA/STARÉ MĚSTO - Pronájem kompletně zařízeného 2i bytu se 2 balkony
14414x Zakázka zobrazená v seznamu / 191x Zakázka zobrazená v detailním náhledu / 191x Zakázka zobrazená v detailním náhledu za měsíc
Pokud hledáte byt s pěší dostupností do centra města, výbornými spoji do celé Bratislavy ať už tramvají nebo autobusem s plnou občanskou vybaveností máme pro Vás skvělou nabídku.
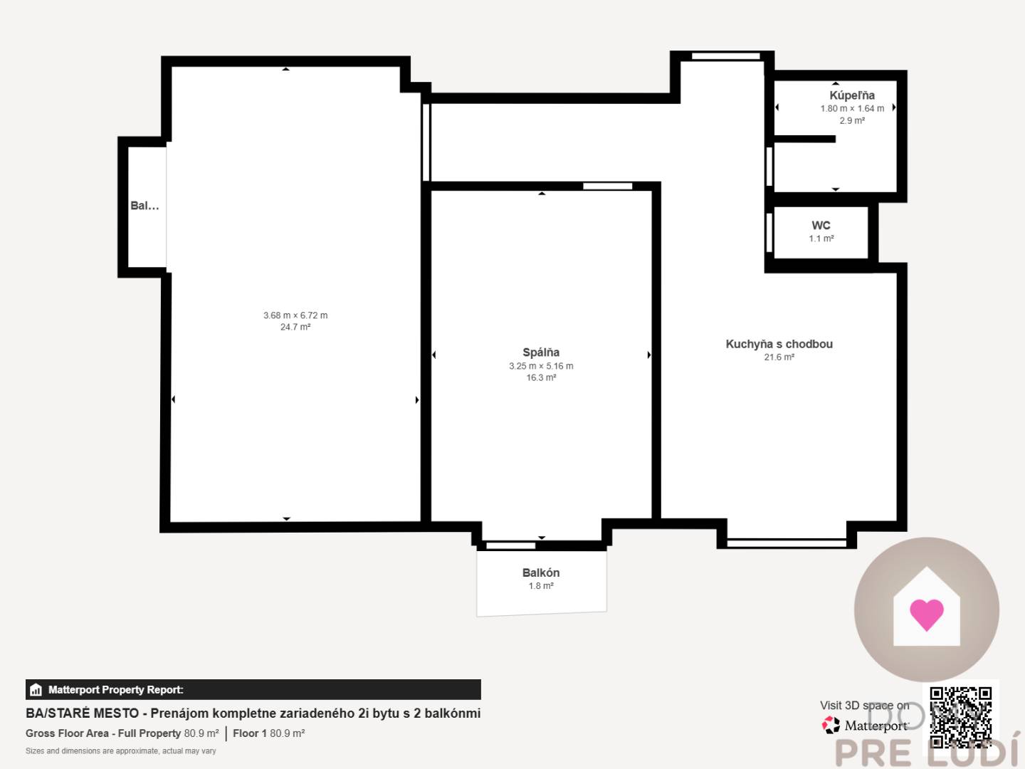
Exkluzivně nabízíme k dlouhodobému pronájmu výborně dispozičně řešený kompletně zařízený 2 pokojový byt s oddělenou kuchyní, balkonem, francouzským balkonkem a sklepem ve Starém městě na Křížné ulici v blízkosti Trnavského mýta. Byt se nachází ve 3. patře ze 6ti ve zrekonstruovaném cihlovém bytovém domě s výtahem. Orientován je na jihovýchodní stranu do vnitrobloku, což zaručuje příjemnou světelnost po celý den. Na oknech jsou situovány žaluzie a síťky.
Samotný byt prošel starší kompletní rekonstrukcí, kdy byly měněny elektrické instalace, vodovodní instalace, plastová okna, dotažený optický kabel, provedeny nové stěrky, interiérové dveře, plovoucí podlahy, keramická dlažba, WC, koupelna se sprchovým koutem a obklady, zařízení a také komplet.
Byt disponuje:
- vstupní chodbou s botníkem, zrcadlem a věšákem na bundy
- samostatnou plně vybavenou kuchyní - kuchyňská linka dělaná na míru se zabudovanými spotřebiči (varná deska, el. trouba, digestoř), samostatně stojící chladnička s mrazákem, mikrovlnka a pračka, jídelní stůl se 6 židlemi a je vybavena také nádobím. náčiním,
- prostorným obývacím pokojem, ve kterém se nachází sedačka, konferenční stolek, koberec, obývací skříňková sestava, TV, pracovní stolek se židlí, stojací lampa a vychází se z ní na francouzský balkónek (0,8 m2),
- prostornou ložnicí s manželskou postelí s matrací, 2 x nočním stolkem, křeslem, stojací lampou a 3 šatními skříněmi. Vychází se z ní na balkon orientovaný do tichého vnitrobloku s množstvím zeleně, který zvětšuje plochu bytu o 4,2 m2,
- koupelnou se sprchovým koutem, umyvadlem, zrcadlovou skříňkou a skříňkou pod umyvadlem,
- samostatným WC
- bezpečnostními dveřmi.
K bytu přísluší i latkový sklep o výměře 2 m2, který je situován v suterénu bytového domu
Byt se pronajímá kompletně zařízený a je k dispozici ihned. Je výborným řešením bydlení pro jednotlivce, případně pracujících pár.
Cena měsíčního nájmu je ve výši 850€ + 250€ je cena energii včetně internetu . V případě 3 osob se cena energie navýší o 50€.
Při podpisu nájemní smlouvy se skládá kauce ve výši jednoměsíčního nájmu s energiemi, která je vratná po uplynutí nájemní smlouvy.
V případě zájmu o obhlídky mě neváhejte kontaktovat na tel. čísle .
Lokalita je s výbornou občanskou vybaveností a infrastrukturou, bezproblémová dostupnost mnoha spojů do města a ostatních částí Bratislavy - (Křížna ul., Trnavské a Račianské mýto). Hned pod domem se nachází Terno, květinářství a řada obchodů. V okolí se nacházejí potraviny (Lidl, Billa, Terno..), pekárna, restaurace u Itala, Domino Pizza, kavárny, OC Centrál, Tržnice na Trnavském mýtu, příští Istropolis, škola, školky, zdravotní středisko a pod.
Parkování je zajištěno formou parkovací politiky Staré město.
Vaše hodnocení nabídky
Pozice realitní nabídky
Podrobné informace
| Celková rozloha | 72 m² |
|---|---|
| Užitná plocha | 66.2 m² |
| Patro | 3/vyšší patro |
| Počet pater | 6 |
| Počet izeb | 2 |
| Vlastnictví | firemní |
| Stav | zcela zrekonstruován |
| Status | aktivní |
| Odpady | separovaný odpad |
| Plyn | ne |
| Internet | optika |
| Koupelna | ano |
| Vytápění | společné |
| Balkon | 2 |
| Lodžie | ne |
| Terasa | ne |
|---|---|
| Sklep | ano |
| Garáž | ne |
| Parkoviště | veřejné |
| Postaveno z | cihla |
| Vybavení | zařízení |
| Zateplení | ano |
| Krb | ne |
| Klimatizace | ne |
| Kabelová televize | ano |
| Energetický certifikát | ano |
| Předzahrádka | ne |
| Bezbariérový přístup | ne |
| Okna | plastová |
| Orientace | jihovýchodní |
Kontaktní formulář
Vývoj ceny
Mohlo by vás také zajímat.
Pronájem Byt 2+1
65 m2
Bratislava - Staré Mesto
600,- €/měs.
Pronájem Byt 2+1
58 m2
Bratislava - Staré Mesto
900,- €/měs.
Pronájem Byt 2+1
85 m2
Bratislava - Staré Mesto
1.650,- €/měs.
Pronájem Byt 2+1
51 m2
Bratislava - Staré Mesto
1.100,- €
Pronájem Byt 2+1
58.2 m2
Bratislava - Staré Mesto
1.250,- €/měs.
Pronájem Byt 2+1
45 m2
Bratislava - Staré Mesto
940,- €/měs.
Pronájem Byt 2+1
50 m2
Bratislava - Staré Mesto
1.200,- €/měs.
Pronájem Byt 2+1
49 m2
Bratislava - Staré Mesto
950,- €/měs.
Pronájem Byt 2+1
49 m2
Bratislava - Staré Mesto
990,- €/měs.
Pronájem Byt 2+1
45 m2
Bratislava - Staré Mesto
1.000,- €/měs.
Pronájem Byt 2+1
55 m2
Bratislava - Staré Mesto
1.070,- €/měs.
Pronájem Byt 2+1
85 m2
Bratislava - Staré Mesto
1.390,- €
Pronájem Byt 2+1
50 m2
Bratislava - Staré Mesto
900,- €/měs.
Pronájem Byt 2+1
50 m2
Bratislava - Staré Mesto
1.290,- €/měs.
Pronájem Byt 2+1
52 m2
Bratislava - Staré Mesto
950,- €
Pronájem Byt 2+1
56.72 m2
Bratislava - Staré Mesto
790,- €/měs.
Pronájem Byt 2+1
50 m2
Bratislava - Staré Mesto
1.000,- €/měs.
Pronájem Byt 2+1
55 m2
Bratislava - Staré Mesto
870,- €/měs.

























